干式鐵心電抗器
SVG用干式鐵心進線電抗器

1.型號含義:

2.產品用途:
SVG進線電抗器接在SVG裝置的前端,其作用如下:
用于連接SVG裝置和電網,實現能量緩沖;
減少SVG開關的波紋,降低共模干擾;
抑制逆變器連接到電網時的電流突變,實現電流平波作用;
必要時可將電網電壓變到適合逆變器工作的電壓。
3.產品引用標準
GB/T 1094.6-2011 電力變壓器 第6部分:電抗器
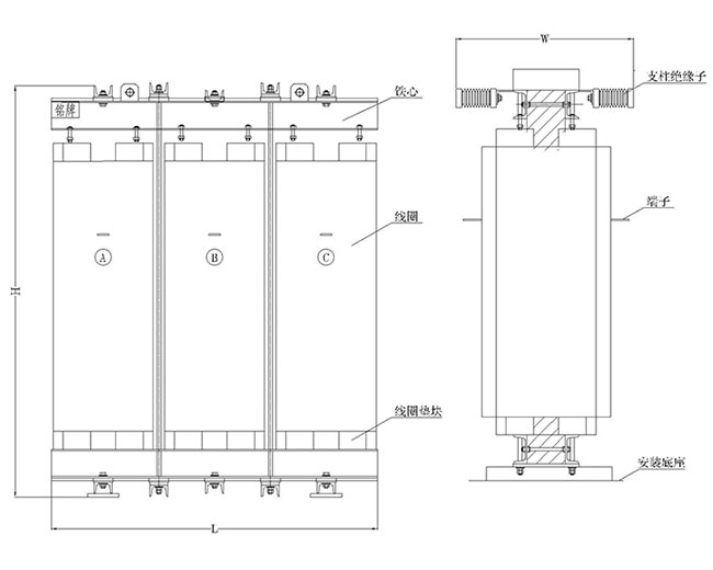
4.產品結構介紹
我公司生產的鐵心串聯電抗器,主體結構包括:鐵心和線圈兩大部分。
電抗器鐵心為三柱芯式結構,芯柱由階梯形或輻射型鐵餅組成,上下鐵軛為矩形或圓形。鐵心采用優質冷軋硅鋼片加工而成,為了降低鐵心的噪聲,鐵心餅采用高強度樹脂澆注灌封為一個整體。鐵芯餅間的氣隙由若干個小氣隙分段組成,既能降低鐵心損耗,又可減少噪聲,鐵心餅通過低導磁螺桿和鐵軛壓緊成一個整體。為了減少鐵心運行中的震動,鐵心和電抗器底座間采用減震材料加以緩沖。
線圈由優質絕緣材料包繞的銅質或鋁質導線繞制而成,繞制過程中為防止多跟導線間產生環流,導線采用完全換位繞制。線圈繞制結束后,采用雙組份環氧樹脂在真空狀態下對線圈進行澆注,確保繞組匝間、層間不留有氣隙,降低產品局部放電。
產品的結構示意圖見下圖。

5.訂貨基本參數
系統額定電壓
電抗器額定電流
電抗器額定電感
6.常用型號進線電抗器參數一覽表

7.電抗器接線方式

- 沒有了!
- 干式鐵心串聯電抗器
